Étiquette : bâtiment neuf

Espace culturel et de loisir de Lanester

vue depuis le parvis du centre culturel vue depuis le parvis du centre culturel
vue aerienne du projet vue aerienne du projet
vue du hall de la salle de spectacle vue du hall de la salle de spectacle
plan du projet de lanester plan du projet de lanester
schema fonctionnel en 3d schema fonctionnel en 3d

 

Maitrise d’ouvrage : Ville de Lanester

Maitrise d’oeuvre :  D3 Architectes (mandataire), ARCADIS, A&T, ALTIA

Montant travaux : 5.7 millions d’€

Surface : 3 400 m²

type de procédure : concours restreint,

 

Description: La composition volumétrique de la nouvelle salle de spectacle et de ses locaux connexes reprend le jeu existant des équipements adjacents. L’imbrication des volumes les uns avec les autres dans une variation d’échelles et de volumétries développe un principe de poupées gigognes, favorise un jeu de volume encastré.

Maison des cultures urbaines de Lille

vue principale de la maison des musiques actuelles vue principale de la maison des musiques actuelles
vue aerienne du batiment vue aerienne du batiment
parvis de la maison des musiques actuelles parvis de la maison des musiques actuelles
plan du rdc du projet plan du rdc du projet
tous les plans du projet tous les plans du projet

 

Maitrise d’ouvrage : Ville de Lille

Maitrise d’oeuvre :  D3 Architectes (mandataire), BETOM, CAP TERRE, A&T, ALTIA

Montant travaux : 8 millions d’€

Surface : 3 700 m²

type de procédure : concours restreint,

 

Description: Maison des cultures urbaines, du Hip Hop et des musiques actuelles….  Ce bâtiment au corps mouvant, à la forte image identitaire, vient prendre appui sur une excroissance du sol généré par la salle de diffusion. Les deux mouvements s’associent et se répondent permettant ainsi une lecture distincte mais complémentaire des deux pôles qui constituent le projet.

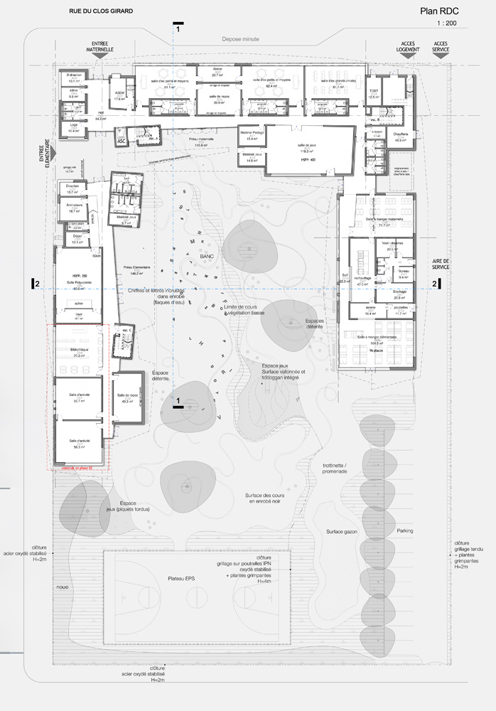
Groupe scolaire les grisettes

parvis groupe scolaire BEPOS parvis groupe scolaire BEPOS
pespective aerienne du groupe scolaire semi enterré pespective aerienne du groupe scolaire semi enterré
plans masse du groupe scolaire BEPOS plans masse du groupe scolaire BEPOS

 

Maitrise d’ouvrage : Ville de Montpellier

Maitrise d’oeuvre :  D3 Architectes (mandataire), GINGER BEFS, GAUDIN, VPEAS

Montant travaux : 7 millions d’€

Surface : 3 500 m²

type de procédure : concours restreint,

 

Description: Groupe scolaire BEPOS (batiment énergie positive), comprenant une école élémentaire, une école maternelle, un restaurant scolaire. Bâtiment traité par ventilation naturelle hybride.

Pôle civique de la ville de Fosses

parvis pole civique parvis pole civique
perspective aerienne perspective aerienne
perspective sur le jardin de l'hotel de ville perspective sur le jardin de l'hotel de ville
maquette blanche 3d maquette blanche 3d
façades du projet façades du projet
plan du rez de chaussée plan du rez de chaussée
plans des étages courrants plans des étages courrants

 

Maitrise d’ouvrage : Ville de Fosses

Maitrise d’oeuvre :  D3 Architectes (mandataire), BETOM, TERAO, A&T, ALTIA

Montant travaux : 8.5 millions d’€

Surface : 4 000 m²

type de procédure : concours restreint, Projet CO-LAUREAT

 

Description: Projet mutli-fonction comprenant une mairie, une médiathèque, salles de danse, une salle de spéctacle, un centre social, CPAM, un pôle emploi….

Crêche C1 BEPOS

entrée de la creche C1 BEPOS entrée de la creche C1 BEPOS
vue du sol de la creche C1 vue du sol de la creche C1
perspective aerienne de la creche BEPOS perspective aerienne de la creche BEPOS
plan de la creche de la ZAC seguin plan de la creche de la ZAC seguin
schemas d'études schemas d'études

 

Maitrise d’ouvrage : SAEM Val de Seine

Maitrise d’oeuvre :  D3 Architectes (mandataire), BETOM, CAP TERRE

Montant travaux : 2 millions d’€

Surface : 1 500 m²

type de procédure : concours restreint,

 

Description: projet pour un bâtiment énergies zéro BEPOS au sein de la Zac Seguin

Groupe scolaire Bordeaux

vue aerienne du groupe scolaire ginko vue aerienne du groupe scolaire ginko
vue coté venelle du groupe scolaire ginko vue coté venelle du groupe scolaire ginko
plan rdc du groupe scolaire plan rdc du groupe scolaire
plan masse du groupe scolaire ginko plan masse du groupe scolaire ginko
façade Ouest du groupe scolaire façade Ouest du groupe scolaire
façade Nord du groupe scolaire façade Nord du groupe scolaire

 

Maitrise d’ouvrage : Ville de Bordeaux

Maitrise d’oeuvre :  D3 Architectes (mandataire), ARTELIA (COTEBA)

Montant travaux : 10 millions d’€

Surface : 4 500 m²

type de procédure : concours restreint,

 

Description: Groupe scolaire BBC au cœur de la zac de la berge du lac (Ginko). Ce projet propose une alternative aux contraintes de place pour les emprises de cours, sans pénaliser l’imperméabilisation du sol.

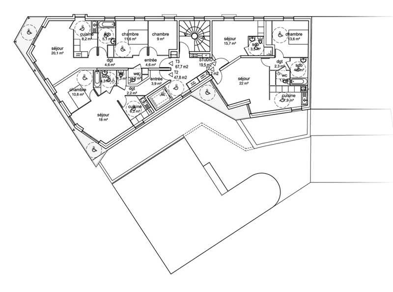
Siemp

vue extérieure des logements collectifs vue extérieure des logements collectifs
vue extérieure dans l'angle de la rue vue extérieure dans l'angle de la rue
façade sud des logements façade sud des logements
façade Nord des logements façade Nord des logements
schema conceptuel schema conceptuel
plans du projet de logements collectifs plans du projet de logements collectifs

 

Maitrise d’ouvrage : SIEMP

Maitrise d’oeuvre : D3 Architectes (mandataire), ARCADIS, GAUDIN

Montant travaux : 3 Millions d’€

Surface : 1 600 m²

type de procédure : concours restreint,

 

Description : 18 logements + commerces en BBC, traités avec un volume compact et une double peau sur la façade Sud, la façade Nord restant faiblement percée et lisse, la toiture terrasse est végétalisée et reçoit des panneaux solaires.

St Memmie

vue aerienne du projet de st memmie vue aerienne du projet de st memmie
schema conceptuel du projet schema conceptuel du projet
vue depuis la circulation du projet vue depuis la circulation du projet
schema d'esquisse du projet schema d'esquisse du projet
plan rdc du groupe scolaire plan rdc du groupe scolaire
facade du groupe scolaire facade du groupe scolaire
coupe de détail coupe de détail

 

Maitrise d’ouvrage : Ville de St Memmie

Maitrise d’oeuvre : D3 Architectes (mandataire), GMGB, CHOULLET, VPEAS

Montant travaux : 4.5 Millions d’€

Surface : 2 600 m²

type de procédure : concours restreint,

 

Description: Ce groupe scolaire entouré de barres d’immeubles, est traité avec une cinquième façade permettant de minimiser l’impact du projet sur le traitement paysager de l’ensemble.

Groupe scolaire de Chessy

 

Maitrise d’ouvrage : SAN Val de Marne

Maitrise d’oeuvre :  D3 Architectes (mandataire), CAO-PERROT, ARCADIS, ALTO

Montant travaux : 5 Millions d’€

Surface : 2 500 m²

type de procédure : concours restreint

 

Description : Projet d’école maternelle, élémentaire et centre de loisir

Siège social de la SIM à Mayotte

vue d'ensemble bureaux mayotte vue d'ensemble bureaux mayotte
perspective aerienne et insertion topographique perspective aerienne et insertion topographique
schema de principe et de zoning schema de principe et de zoning
schema de principe des bureaux en extension schema de principe des bureaux en extension
coupe sur bureaux semi encastrés coupe sur bureaux semi encastrés
coupe sur le batiment principal de la sim coupe sur le batiment principal de la sim
facade batiment principal facade batiment principal
facade longitudinale facade longitudinale

 

Maitrise d’ouvrage : SIM

Maitrise d’oeuvre : DeLamy (mandataire), D3 Architectes 

Montant travaux : 11 millions d’€

Surface : 6 000 m²

type de procédure : concours restreint

 

Description: Le projet qui consiste à créer un bâtiment signal dans la ville, s’appuie sur l’insertion de tout le programme (SIM + CG) sur une parcelle fortement accidentée faisant face au lagon et à la place de Mamoudzou. C’est aussi une reconnaissance de l’esthétique, et des coutumes de la société mahoraise.