Théâtre de Sartrouville

vue exterieure theatre vue exterieure theatre
vue interieure theatre vue interieure theatre
facade theatre facade theatre
coupe theatre coupe theatre
plan theatre 01 plan theatre 01
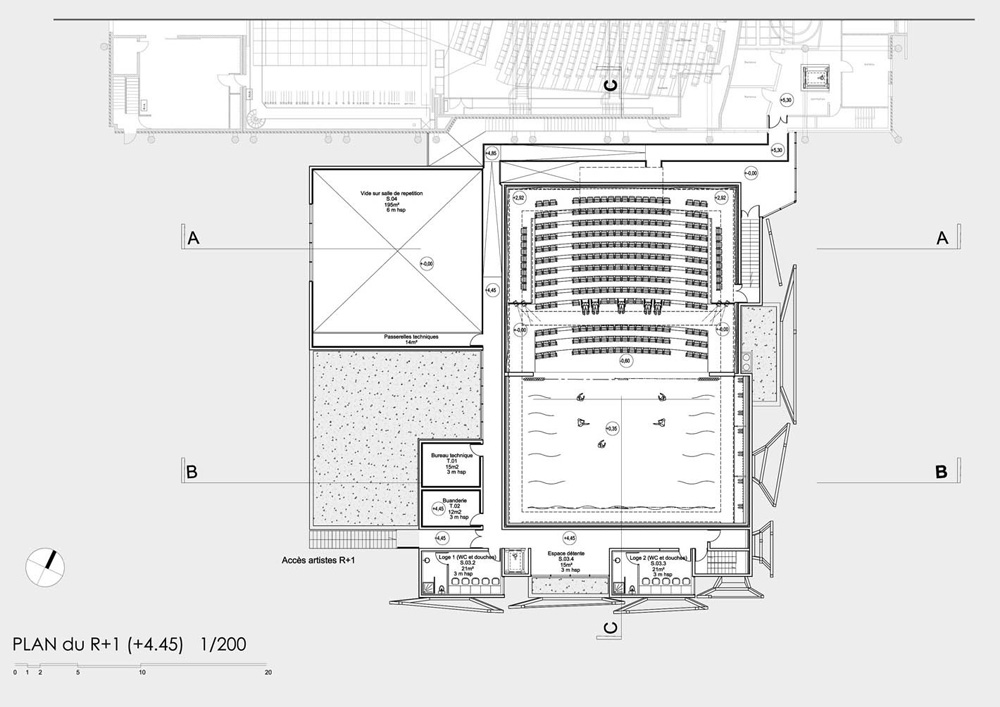
plan theatre 02 plan theatre 02
plan theatre 03 plan theatre 03

 

Maitrise d’ouvrage : Ville de Sartrouville

Maitrise d’oeuvre :  D3 Architectes (mandataire), GMGB, CHOULET, VPEAS, A&T, ALTIA

Montant travaux : 3.4 Millions d’€

Surface : 1 500 m²

type de procédure : concours restreint

 

Description : Projet d’extension du théâtre de Sartrouville, avec une nouvelle salle, une salle de réception, et une connexion au théâtre existant