Étiquette : extension restructuration

Lyon Gerland

Maitrise d’ouvrage : GECINA, EDF

Maitrise d’oeuvre : RR&A (mandataire), D3 Architectes (co-traitant), FRAMM, ARCADIS, INGENI

Montant travaux : 33 Millions d’€

Surface : 22 000 m²

type de procédure : concours restreint (privé),

Projet Lauréat, livré en 2017,

– 1er prix des ADC AWARDS 2018 en tertiaire réhabilité

– 1er prix des trophées du bâtiment et de l’immobilier en réhabilitation

 

Description : Projet de bureaux pour la relocalisation du SEPTEN EDF (bureaux de la sûreté nucléaire). Extension restructuration de la halle Gerland à Lyon. Ce bâtiment est visé BREEAM very good (label environnemental International).

vue aerienne 01 bureaux gerland vue aerienne 01 bureaux gerland
vue aerienne bureaux gerland 02 vue aerienne bureaux gerland 02
axonométrie eclatée 01 axonométrie eclatée 01
axonométrie éclatée 02 axonométrie éclatée 02
vue du parvis du SEPTEN vue du parvis du SEPTEN
perspective vu du sol Nord Est perspective vu du sol Nord Est
perspective coupée perspective coupée
facade Ouest Bureaux gerland facade Ouest Bureaux gerland
coupe longitudinale bureaux gerland coupe longitudinale bureaux gerland

 

 

photos de chantier 04/2017:

 

Photos de chantier par Philippe Roguet :

 

Photos de chantier de Mars 2016 :

 

 

Photos de chantier par Philippe Roguet :

Valenciennes, cœur de ville

valenciennes logements valenciennes logements

 

Maitrise d’ouvrage : MAB

Maitrise d’oeuvre :  RR&A (mandataire) , D3 Architectes (co-traitant),

Montant travaux : 60 millions d’€

Surface : 40 000 m²

type de procédure : concours restreint, PROJET LAUREAT

 

Description: projet de logements, commerces et parking au coeur de valenciennes. projet abandonné (MAB fermant sa filiale)

Pin Galant

photo salle de spectacle pin galant photo salle de spectacle pin galant
photo de nuit exterieur photo de nuit exterieur
plan rdc du pin galant plan rdc du pin galant
photo de la salle de spectacle 02 photo de la salle de spectacle 02
photo de 3/4 de la salle de spectacle photo de 3/4 de la salle de spectacle
photo depuis fond de salle photo depuis fond de salle

 

Maitrise d’ouvrage : Ville de Mérignac

Maitrise d’oeuvre : D3 Architectes (mandataire), BETOM, CAP TERRE, A&T, ALTIA

Montant travaux : 6 Millions d’€

Surface : 4 500 m²

type de procédure : concours restreint ,

Projet Lauréat, Livré en 2011

Description : Projet d’extension et de restructuration du Pin Galant à Mérignac : salle de spectacle de 1 400 places. Le projet se caractérise par la restructuration complète de la salle et de la cage de scène, l’extension du bâtiment pour les bureaux attenants.

Maison des cultures urbaines de Lille

vue principale de la maison des musiques actuelles vue principale de la maison des musiques actuelles
vue aerienne du batiment vue aerienne du batiment
parvis de la maison des musiques actuelles parvis de la maison des musiques actuelles
plan du rdc du projet plan du rdc du projet
tous les plans du projet tous les plans du projet

 

Maitrise d’ouvrage : Ville de Lille

Maitrise d’oeuvre :  D3 Architectes (mandataire), BETOM, CAP TERRE, A&T, ALTIA

Montant travaux : 8 millions d’€

Surface : 3 700 m²

type de procédure : concours restreint,

 

Description: Maison des cultures urbaines, du Hip Hop et des musiques actuelles….  Ce bâtiment au corps mouvant, à la forte image identitaire, vient prendre appui sur une excroissance du sol généré par la salle de diffusion. Les deux mouvements s’associent et se répondent permettant ainsi une lecture distincte mais complémentaire des deux pôles qui constituent le projet.

Collège de la Brède

vue du parvis du college vue du parvis du college
perspective sur l'entrée du bâtiment perspective sur l'entrée du bâtiment
perspective aérienne du projet perspective aérienne du projet
vue coté cour du collège vue coté cour du collège
plan du RDJ plan du RDJ
plans du rdc du college plans du rdc du college
plan du r+1 du college plan du r+1 du college
facade sud du college facade sud du college
façade Est du collège façade Est du collège
coupe de détail de façade coupe de détail de façade

 

Maitrise d’ouvrage : CG 33

Maitrise d’oeuvre :  D3 Architectes (mandataire), BETOM / CAP TERRE / VPEAS

Montant travaux : 6 millions d’€

Surface : 5 000 m²

type de procédure : concours restreint,

 

Description: Extension restructuration du collège de la Brède.  Ce collège, morcelé sur un site avec une topographie très marquée, necessite une reprise complete des espaces extérieur, et une ré-écriture architecturale.

Lycée de Tarbes

vue exterieure du parvis du lycée vue exterieure du parvis du lycée
vue rapprochée du parvis du lycée vue rapprochée du parvis du lycée
vue de détail du lycée de tarbes vue de détail du lycée de tarbes

 

Maitrise d’ouvrage : CR Midi Pyrénées

Maitrise d’oeuvre : D3 Architectes (mandataire), GINGER BEFS, GAUDIN

Montant travaux : 9 Millions d’€

Surface : 8 000 m²

type de procédure : concours restreint,

Projet Co-Lauréat

 

Description : Projet d’extension et de restructuration du Lycée Marie Curie à Tarbes. (RT 2012).

Théâtre de Sartrouville

vue exterieure theatre vue exterieure theatre
vue interieure theatre vue interieure theatre
facade theatre facade theatre
coupe theatre coupe theatre
plan theatre 01 plan theatre 01
plan theatre 02 plan theatre 02
plan theatre 03 plan theatre 03

 

Maitrise d’ouvrage : Ville de Sartrouville

Maitrise d’oeuvre :  D3 Architectes (mandataire), GMGB, CHOULET, VPEAS, A&T, ALTIA

Montant travaux : 3.4 Millions d’€

Surface : 1 500 m²

type de procédure : concours restreint

 

Description : Projet d’extension du théâtre de Sartrouville, avec une nouvelle salle, une salle de réception, et une connexion au théâtre existant

Centre d’art « la cuisine » de Negrepelisse

vue au pied du chateau vue au pied du chateau
vue aerienne du projet de centre d'art vue aerienne du projet de centre d'art
façade du centre d'art façade du centre d'art
plan du centre d'art la cuisine plan du centre d'art la cuisine

 

Maitrise d’ouvrage : Ville de Negrepelisse

Maitrise d’oeuvre :  D3 Architectes (mandataire), De La Soudière-Niault (co-traitant), BETOM, CAP TERRE,

Montant travaux : 1.5 millions d’€

Surface : 900 m²

type de procédure : concours restreint

 

Description: Extension restructuration du château de Negrepelisse, pour y implanter un centre d’art dédié à la cuisine.

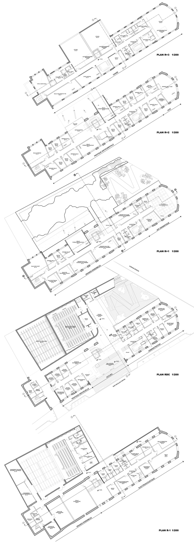
Conservatoire de Paris 13ème

perspective exterieure du conservatoire perspective exterieure du conservatoire
perspective de nuit du conservatoire perspective de nuit du conservatoire
vue intérieure du hall du batiment vue intérieure du hall du batiment
coupe longitudinale coupe longitudinale
facade du conservatoire facade du conservatoire
façade sur entrée façade sur entrée
coupe transversale coupe transversale
plans du conservatoire plans du conservatoire

 

Maitrise d’ouvrage : Ville de Paris

Maitrise d’oeuvre : D3 Architectes (mandataire), TRYPTIQUE (co-traitant), ARCADIS, CAO-PERROT

Montant travaux : 11 Millions d’€

Surface : 4 000 m²

type de procédure : concours restreint,

 

Description: Extension et restructuration d’une ancienne école, reconvertie en conservatoire de musique et de danse.